Budapest
Eladó Ház
XVIII. kerület, Ferihegy
119 m2
139.990.000 Ft
352415
Budapest - Eladó Ház
XVIII. kerület, Ferihegy
119 m2
139.990.000 Ft
352415
Leírás
ELADÓ ÚJ ÉPÍTÉSŰ, 2 SZINTES, KLASSZIKUS IKERHÁZ, XVIII.KERÜLET FERIHEGY RÉSZÉN, 541 NM-ES TELKEN LAKÁSONKÉNT 270M2-ES TELEK RÉSSZEL. AZ ÉPÜLET A SZIGORÚ KÖRNYEZETVÉDELMI ÉS ENERGETIKAI ELVÁRÁSOKNAK MEGFELEL!
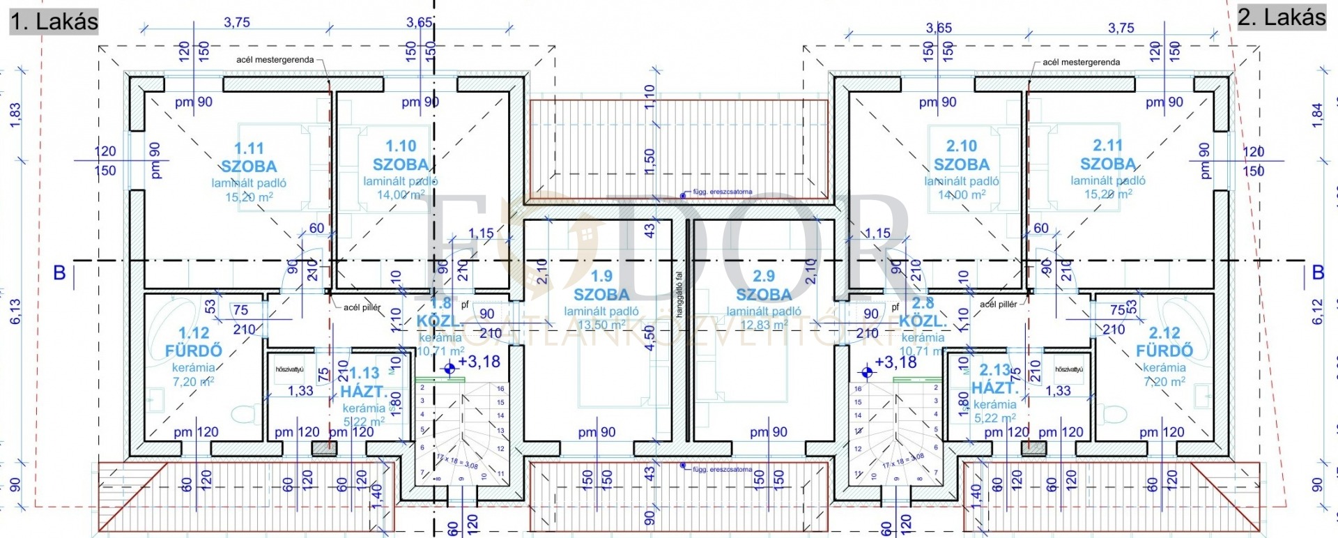
A lakások hasznos lakóterülete 120m2 és 119m2. Amerikai-konyhás nappalin kívül 3 külön bejáratú hálószobával rendelkezik. Nappalija közvetlen kertkapcsolatos, 12 nm-es terasz és 20 nm-es garázs-tároló tartozik a lakásokhoz.
Az építkezés még nem kezdődött el, várható kezdés 2026. májusa, a befejezés 2027. első negyedévében várható. Az ingatlan minden tekintetben meg fog felelni a mai kor elvárásainak. Burkolatok, szaniterek, beltéri ajtók választhatóak. A lakás fűtése és melegvíz ellátása levegő-víz hőszivattyúval készül, amely 210 l-es melegvíz tartályt is tartalmaz. A lakás hűtése 1 db inverteres hűtő-fűtő klímával lesz megoldott.
Lakások ára:
1. Lakás: 140.990.000.- Forint (140m2-es lakás)
2. Lakás: 139.990.000.-Forint (139m2-es lakás)
Műszaki tartalom:
• 30-as főfal, 10 cm-es tégla válaszfalak, 10 cm grafitos homlokzati és 30 cm födémszigetelés.
• Vasbeton sávalap.
• Fehér, műanyag tokos, 3 rétegű, több légkamrás, thermo üvegezésű nyilászárók, elektromos redőny, motorizálásra előkészítve.
• Hőszivattyú, klíma.
• Antracit vagy barna színű cserép, készültségi fok függvényében választható.
Elrendezés:
Földszint:
Előtér, terasz kapcsolatos nappali, étkező-konyha, kamra, zuhanyzós fürdőszoba, garázs és az emeletre vezető lépcső.
Emelet:
Három külön nyíló hálószoba, egy fürdőszoba és egy háztartási helyiség.
Tulajdonságok:
• Privát kerítéssel elválasztott saját telekrész.
• Elektromos kapu előkészítés és hőszigetelt, szekcionált garázs ajtó és motor az árban.
• Teljes riasztó rendszer, kezelő egységgel együtt.
AZ ÁRAK KULCSRAKÉSZ ÁLLAPOTRA VONATKOZNAK!
A környék infrastruktúrája kiváló, minden kiszolgáló egység és tömegközlekedés pár perc sétára megtalálható.
Irodánk teljes körű segítséget nyújt:
•díjmentes hitelügyintézés
•CSOK Plusz tanácsadás
• banki partneri háttér a vásárlás minden lépésében
Az alaprajz és a leírás kizárólag tájékoztató jellegű.
Ne maradjon le erről az igazán különleges lehetőségről – hívjon bizalommal!
Paraméterek
Paraméterek
| Település: | 1185 Budapest XVIII. kerület |
| Településrész: | Ferihegy |
| Tranzakció típusa: | Eladó |
| Ingatlan típusa: | Ház / Ikerház |
| Alapterület: | 119 m2 |
| Szobaszám: | 4 |
| Építés éve: | 2026 |
| Költözhető: | kevesebb mint egy éven belül |
| Szerkezet: | Tégla ház |
| Telek terület: | 270 m2 |
| Állapot: | Újépítésű |
| Komfort: | Összkomfortos |
| Szintek száma az épületben: | 2 szintes |
| Fűtés: | Hőszivattyú |
| Belmagasság: | 3 méter alatt |
| Wc és fürdőszoba: | Külön is egyben is |
| Erkély: | Nem |
| Terasz: | 12 m2 |
| Akadálymentesített: | Nem |
| Kilátás: | Udvarra néző, Kertre, parkra néző, Utcára néző |
| Parkolás: | 1 állásos garázs |
| Parkolás benne van az árban: | Igen |
| Extrák: | Riasztó, Amerikai konyhás, Jogilag újépítésű, Terasz, Légkondicionáló |
Kapcsolati adatok
Érdeklődjön az ingatlanról, e-mailben!
ADATVÉDELMI TÁJÉKOZTATÓ ÉS NYILATKOZAT
Hatályos: 2022. március 22.
TARTALOM
4. Az adatkezelés alapvető elvei 5
5.3 Pénzmosás és terrorizmus finanszírozása megelőzése érdekében végzett adatkezelés. 6
5.4 Megtekintési nyilatkozat. 7
5.7 Tulajdonosi nyilatkozat vételi ajánlatra. 8
7. Az adatok továbbítása, átadása. 10
8.1 Előzetes tájékoztatáshoz való jog. 11
8.3 A helyesbítéshez való jog. 11
8.4 A törléshez való jog („az elfeledtetéshez való jog”). 12
8.5 Az adatkezelés korlátozásához való jog. 12
8.7 Adathordozhatósághoz való jog. 13
8.8 A tiltakozáshoz való jog. 13
8.9 Automatizált döntéshozatal, profilalkotás. 14
8.10 Az érintett tájékoztatáshoz való joga az adatvédelmi incidensről 14
8.11 Az érintett joga a felügyeleti hatóságnál történő panasztételhez. 14
8.12 A felügyeleti hatósággal szembeni hatékony bírósági jogorvoslathoz való jog 14
1.Adatkezelő adatai
|
Fodor Ingatlanközvetítő Kft. |
|
||
|
Székhelye: |
1188 Budapest, Lea utca 30/a |
|
|
|
Adószáma: |
29212554-2-43 |
|
|
|
Cégjegyzékszáma: |
01 09 383496 |
|
|
|
E-mail: |
|
|
|
|
Telefon: |
+36 (20) 355 6000 |
|
|
|
Honlap: |
https://fodoringatlan.hu/ |
|
2.Adatvédelmi nyilatkozat
Ez az Adatvédelmi tájékoztató és nyilatkozat (a továbbiakban: Tájékoztató) a Fodor Ingatlanközvetítő Kft. (továbbiakban: Adatkezelő) ingatlanközvetítő tevékenységére vonatkozóan tartalmazza az adatvédelemmel kapcsolatos információkat.
Szolgáltatásunk igénybevétele során Ön megadja személyes adatait. Ezeket az adatokat a legnagyobb körültekintéssel, a jogszabályok előírásainak megfelelően kezeljük, és minden esetben igyekszünk az Ön adatkezeléssel kapcsolatos igényeinek és elvárásainak megfelelni. Az adatok kezelése során mindig különös gondossággal járunk el, és az adatokat védjük az illetéktelen hozzáféréstől. Ezt kiemelt fontosságúnak tekintjük.
Az adatkezelési tevékenységünket meghatározó jogszabályok elsősorban:
- Az Európai Parlament és a Tanács (EU) 2016/679 rendelete (2016. április 27.) A természetes személyeknek a személyes adatok kezelése tekintetében történő védelméről és az ilyen adatok szabad áramlásáról, valamint a 95/46/EK rendelet hatályon kívül helyezéséről (általános adatvédelmi rendelet – General Data Protection Regulation – GDPR, a továbbiakban: Rendelet)
- Az információs önrendelkezési jogról és az információszabadságról szóló 2011. évi CXII. törvény (Infotv.)
- 2008. évi XLVIII. törvény a gazdasági reklámtevékenység alapvető feltételeiről és egyes korlátairól
- 2017. évi LIII. törvény - a pénzmosás és a terrorizmus finanszírozása megelőzéséről és megakadályozásáról
A Tájékoztató célja, hogy ismertesse a szolgáltatásunkat igénybe vevő, illetve weboldalunkat látogató személyek adatátadással, adatkezeléssel, adatvédelemmel kapcsolatos jogait, kötelezettségeit, az általunk kezelt adatok körét, az adatok kezelésének elvét és módszereit, célját, jogalapját és időtartamát.
3.Fogalmak
GDPR: AZ EURÓPAI PARLAMENT ÉS A TANÁCS (EU) 2016/679 RENDELETE (2016. április 27.) a természetes személyeknek a személyes adatok kezelése tekintetében történő védelméről és az ilyen adatok szabad áramlásáról, valamint a 95/46/EK rendelet hatályon kívül helyezéséről (általános adatvédelmi rendelet)
Személyes adat: az érintettre vonatkozó bármely információ, például valamely azonosító, név, szám, helymeghatározó adat, online azonosító vagy a természetes személy testi, fiziológiai, genetikai, szellemi, gazdasági, kulturális vagy szociális azonosságára vonatkozó adat.
Különleges adatok: a faji vagy etnikai származásra, politikai véleményre, vallási vagy világnézeti meggyőződésre vagy szakszervezeti tagságra utaló személyes adatok, valamint a természetes személyek egyedi azonosítását célzó genetikai és biometrikus adatok, az egészségügyi adatok és a természetes személyek szexuális életére vagy szexuális irányultságára vonatkozó személyes adatok.
Adatkezelés: az alkalmazott eljárástól függetlenül a személyes adatokon vagy adatállományokon végzett bármely művelet vagy a műveletek összessége, így különösen gyűjtése, felvétele, rögzítése, rendszerezése, tagolása, tárolása, megváltoztatása, átalakítása, felhasználása, lekérdezése, továbbítása, nyilvánosságra hozatala, összehangolása vagy összekapcsolása, zárolása, törlése és megsemmisítése, az adatokba való betekintés, valamint az adatok további felhasználásának megakadályozása, fénykép-, hang- vagy képfelvétel készítése, valamint a személy azonosítására alkalmas fizikai jellemzők (pl. ujj- vagy tenyérnyomat) rögzítése.
Adatkezelő: az a természetes vagy jogi személy, illetve jogi személyiséggel nem rendelkező szervezet, aki vagy amely önállóan vagy másokkal együtt a személyes adatok kezelésének célját és eszközeit meghatározza, az adatkezelésre vonatkozó döntéseket meghozza és végrehajtja, vagy az adatfeldolgozóval végrehajtatja.
Adatfeldolgozó: az a természetes vagy jogi személy, illetve jogi személyiséggel nem rendelkező szervezet, aki, vagy amely az adatkezelő nevében személyes adatokat kezel.
Érintett: bármely meghatározott személyes adat alapján azonosított vagy –közvetlenül vagy közvetve, egy vagy több tényező alapján – azonosítható természetes személy. Azonosítható az a természetes személy, aki közvetlen vagy közvetett módon, különösen valamely azonosító, például név, szám, helymeghatározó adat, online azonosító vagy egy, vagy több tényező alapján azonosítható.
Adattovábbítás: a személyes adat meghatározott harmadik személy számára történő hozzáférhetővé tétele. Az EGT-tagállamokba, illetve az Európai Unió szervei felé irányuló adattovábbítást úgy kell tekinteni, mintha Magyarország területén belüli adattovábbításra kerülne sor.
Adattörlés/törlés: az adatok felismerhetetlenné tétele tartalomtörléssel vagy ezzel egyenértékű eredményt lehetővé tevő módon.
Adatvédelmi incidens: a biztonság olyan sérülése, amely a továbbított, tárolt vagy más módon kezelt személyes adatok véletlen vagy jogellenes megsemmisítését, elvesztését, megváltoztatását, jogosulatlan közlését vagy az azokhoz való jogosulatlan hozzáférést eredményezi.
EGT-tagállam: az Európai Unió tagállama és az Európai Gazdasági Térségről szóló megállapodásban részes más állam, továbbá az az állam, amelynek állampolgára az Európai Unió és tagállamai, valamint az Európai Gazdasági Térségről szóló megállapodásban nem részes állam között létrejött nemzetközi szerződés alapján az Európai Gazdasági Térségről szóló megállapodásban részes állam állampolgárával azonos jogállást élvez.
Harmadik ország: minden olyan állam, amely nem EGT-tagállam.
NAIH: Nemzeti Adatvédelmi és Információszabadság Hatóság, Magyarország vonatkozásában a GDPR szerinti felügyeleti hatóság.
4.Az adatkezelés alapvető elvei
A személyes adatok:
- kezelését jogszerűen és tisztességesen, valamint az érintett számára átlátható módon végzem („jogszerűség, tisztességes eljárás és átláthatóság”);
- gyűjtése csak meghatározott, egyértelmű és jogszerű célból történhet („célhoz kötöttség”);
- az adatkezelés céljai szempontjából megfelelőek és relevánsak kell, hogy legyenek, és a szükségesre kell korlátozódniuk („adattakarékosság”);
- kezelése során minden észszerű intézkedést megteszek annak érdekében, hogy az adatok pontosak és naprakészek legyenek, az adatkezelés céljai szempontjából pontatlan személyes adatokat haladéktalanul törlöm vagy helyesbítem („pontosság”);
- tárolását olyan formában végzem, amely az érintettek azonosítását csak a személyes adatok kezelése céljainak eléréséhez szükséges ideig teszi lehetővé („korlátozott tárolhatóság”);
- kezelését oly módon végzem, hogy megfelelő technikai vagy szervezési intézkedések alkalmazásával biztosítva legyen a személyes adatok megfelelő biztonsága, az adatok jogosulatlan vagy jogellenes kezelésével, véletlen elvesztésével, megsemmisítésével vagy károsodásával szembeni védelmet is ideértve („integritás és bizalmas jelleg”).
Adatkezelőként felelősek vagyunk a fentieknek való megfelelésért, szükség esetén a megfelelést igazoljuk („elszámoltathatóság”).
5.Kezelt adatok
5.1Kapcsolatfelvétel
Érintettek: Kapcsolatfelvételi szándékkal az adatkezelőhöz forduló természetes személy/jogi személy képviselője
Adatkezelés célja: Válasz küldése, kapcsolatfelvétel, tájékoztatás új ingatlan lehetőségekről
|
Adatfajta |
Jogalap |
Őrzési idő |
|
név |
GDPR 6. cikk (1) a) Hozzájárulás |
Hozzájárulás visszavonásáig |
|
e-mail cím |
||
|
telefonszám |
Az adatkezelés folyamata:
Ha a weboldalunkon elhelyezett űrlap, e-mail, social media üzenet, vagy telefonhívás útján megadja számunkra az elérhetőségeit, ezeket kapcsolattartásra, valamint a szolgáltatásunk teljesítésére fogjuk használni.
A fenti adatok megadása nem kötelező, ezek hiányában azonban nem tudunk kapcsolatot tartani Önnel. A hozzájárulását bármikor indokolás nélkül visszavonhatja, ez azonban nem érinti a korábban, a hozzájárulás alapján történt adatkezeléseket.
5.2Szerződéskötés
Érintettek: Az Adatkezelővel szerződést kötő természetes személy/jogi személy képviselője
Adatkezelés célja: Szerződés megkötése és teljesítése
|
Adatfajta |
Jogalap |
Őrzési idő |
|
név |
GDPR 6. cikk b) pont (szerződés teljesítése) |
A szerződéses kapcsolat megszűnését követő 5 évig |
|
születési hely és idő |
||
|
anyja neve |
||
|
e-mail cím |
||
|
telefonszám |
||
|
lakcím |
Az adatkezelés folyamata:
A szerződés megkötéséhez a fenti személyes adatok megadására van szükség.
Az adatok nélkül a szerződés érvényesen nem jöhet létre.
5.3Pénzmosás és terrorizmus finanszírozása megelőzése érdekében végzett adatkezelés
Érintettek: Az adatkezelővel ingatlan-értékesítésre vonatkozóan megbízási szerződést kötő természetes személy, annak képviselője, vagy jogi személy képviselője
Adatkezelés célja: a pénzmosás és a terrorizmus finanszírozása megelőzéséről és megakadályozásáról szóló 2017. évi LIII. törvény szerinti ügyfél-átvilágítási kötelezettség (továbbiakban: Pmt.) teljesítése
|
Adatfajta |
Jogalap |
Őrzési idő |
|
név |
GDPR 6. cikk c) pont (Jogi kötelezettség teljesítése) |
az üzleti kapcsolat megszűnésétől, illetve az ügyleti megbízás teljesítésétől számított nyolc év (Pmt. 56. §) |
|
születési név |
||
|
születési hely és idő |
||
|
anyja neve |
||
|
lakcím |
||
|
azonosító okmány típusa és száma |
||
|
állampolgárság |
||
|
közszereplői minőség |
||
|
az a körülmény, hogy az Érintett a saját nevében, vagy más tényleges tulajdonos nevében jár el, utóbbi esetben a tényleges tulajdonos családi és utóneve, születési családi és utóneve, állampolgársága, születési helye, ideje, állandó lakcíme, ennek hiányában tartózkodási helye |
||
|
nem természetes személy ügyfél esetében, a képviseletre jogosult neve, beosztása, kézbesítési megbízott azonosításra alkalmas adatai, a tulajdonosi érdekeltség jellegére és mértékére vonatkozó adat |
Az adatkezelés folyamata:
Az Adatkezelő a Pmt. szerinti ügyfél-átvilágítási kötelezettség érdekében kezeli az Érintett személyes adatait. Az üzleti kapcsolat létesítésekor Adatkezelő rögzíti az Érintett Pmt. által meghatározott adatait, és amennyiben fennáll valamely, a Pmt.-ben meghatározott kötelezettség, adatot szolgáltat az illetékes hatóság részre.
Az adatok megadása kötelező, ha az Adatkezelő és az Érintett között üzleti kapcsolat jön létre.
5.4Megtekintési nyilatkozat
Érintettek: Az Adatkezelő által közvetített ingatlanokat megtekintő természetes személy
Adatkezelés célja: Annak igazolása, hogy az adott ingatlant az Érintett az Adatkezelő közvetítésével tekintette meg először.
|
Adatfajta |
Jogalap |
Őrzési idő |
|
név |
GDPR 6. cikk f) pont (Adatkezelő jogos érdeke) |
A megtekintést követő 5 év |
|
születési név |
||
|
születési hely és idő |
||
|
anyja neve |
||
|
lakcím |
||
|
megtekintett ingatlanok, megtekintés időpontja |
||
|
aláírás |
Az adatkezelés folyamata:
Megtekintési nyilatkozaton rögzítjük, hogy az adott ingatlant a mi közvetítésünkkel tekintette meg először.
A jogos érdekre vonatkozóan érdekmérlegelési tesztet végeztünk, amelynek eredményeképpen megállapítottuk, hogy az adatkezelés jogszerű.
Az Érintettnek lehetősége van tiltakozni az adatkezelés ellen (részletesen lásd: 8.8 pont).
5.5Megtekintők adatbázisa
Érintettek: Az Adatkezelő által közvetített ingatlanokat megtekintő természetes személy
Adatkezelés célja: Ingatlanok közvetítése.
|
Adatfajta |
Jogalap |
Őrzési idő |
|
név |
GDPR 6. cikk (1) a) Hozzájárulás |
Hozzájárulás visszavonásáig |
|
telefonszám |
||
|
e-mail cím |
Az adatkezelés folyamata:
Ha Ön a megtekintési nyilatkozat nyomtatványon úgy nyilatkozik, hogy hozzájárul, az elérhetőségi adatait nyilvántartásba vesszük, és a későbbiekben megkereshetjük Önt újabb ingatlan ajánlatokkal.
A fenti adatok megadása nem kötelező, ezek hiányában azonban nem tudunk kapcsolatot tartani Önnel. A hozzájárulását bármikor indokolás nélkül visszavonhatja, ez azonban nem érinti a korábban, a hozzájárulás alapján történt adatkezeléseket.
5.6Vételi ajánlat
Érintettek: Vételi ajánlatot tevő természetes személy, annak képviselője, vagy jogi személy képviselője
Adatkezelés célja: Vételi ajánlat nyilvántartása
|
Adatfajta |
Jogalap |
Őrzési idő |
|
név |
GDPR 6. cikk b) pont (szerződés teljesítése) |
Az ajánlattételt követő 5 év |
|
lakcím |
||
|
születési hely és idő |
||
|
anyja neve |
||
|
személyi igazolvány száma |
||
|
ajánlat tartalma |
||
|
aláírás |
Az adatkezelés folyamata:
A közvetítői szerződés keretében rögzítjük, hogy az adott ingatlanra vonatkozóan az Érintett ajánlatot tett.
Az adatok megadása nélkül a szerződés nem jön létre.
5.7Tulajdonosi nyilatkozat vételi ajánlatra
Érintettek: Az Adatkezelővel szerződéses kapcsolatban álló természetes személy, annak képviselője, vagy jogi személy képviselője, aki az Adatkezelő által közvetített vételi ajánlatra nyilatkozatot tesz.
Adatkezelés célja: Szerződéskötés előkészítése
|
Adatfajta |
Jogalap |
Őrzési idő |
|
név |
GDPR 6. cikk f) pont (Adatkezelő jogos érdeke) |
A nyilatkozattételt követő 5 év |
|
nyilatkozat tartalma |
Az adatkezelés folyamata:
Tulajdonosi nyilatkozaton rögzítjük, hogy az adott ingatlanra tett ajánlatot az Érintett elfogadja, nem fogadja el, vagy ellenajánlatot tesz.
A jogos érdekre vonatkozóan érdekmérlegelési tesztet végeztünk, amelynek eredményeképpen megállapítottuk, hogy az adatkezelés jogszerű.
Az Érintettnek lehetősége van tiltakozni az adatkezelés ellen (részletesen lásd: 8.8 pont).
5.8Számlák kezelése
Érintettek: Minden természetes személy, aki megbízási díjat fizet részemre.
Adatkezelés célja: Számviteli törvény szerinti bizonylat kezelése.
|
Adatfajta |
Jogalap |
Őrzési idő |
|
név |
GDPR 6. cikk c) pont (Jogi kötelezettség teljesítése) |
szerződéses kapcsolat megszűnését követő 8+1 év |
Az adatkezelés folyamata:
Magánszemélyek esetében a bizonylatok tartalmaz(hat)nak személyes adatot. Ezeket az iratokat megőrizzük a Számviteli törvény előírásainak megfelelően.
Az adatok megadása a vonatkozó jogszabályok alapján a kötelező. Elmulasztása esetén a számla nem fogadható el.
Az adatokat elektronikusan tároljuk a számlázz.hu szolgáltatás segítségével.
Az adatok ellenőrzés esetén átadásra kerülnek az illetékes szerv (NAV) részére.
Az adatkezelésben a KBOSS.hu Kft. (szamlazz.hu) működik közre adatfeldolgozóként.
6.Az adatok biztonsága
Technikai és szervezési intézkedésekkel, valamint eljárások kialakításával gondoskodunk az általunk kezelt személyes adatok biztonságáról.
Az adatokat megfelelő intézkedésekkel védjük a jogosulatlan hozzáférés, megváltoztatás, továbbítás, nyilvánosságra hozatal, törlés vagy megsemmisítés, valamint a véletlen megsemmisülés és sérülés, továbbá az alkalmazott technika megváltozásából fakadó hozzáférhetetlenné válás ellen.
A személyes adatokhoz csak azok a munkatársaink férnek hozzá, akiknek feladataik ellátásához szükségük van azok megismerésére.
Az adatok biztonsága érdekében
- az informatikai rendszer tervezése és üzemeltetése során felmérjük és figyelembe vesszük a lehetséges kockázatokat, törekedve azok folyamatos csökkentésére
- figyelemmel kísérjük a felmerülő fenyegetéseket és sérülékenységeket (mint pl. számítógépes vírusok, számítógépes betörések, szolgáltatásmegtagadásra vezető támadások stb.), hogy időben intézkedhessünk azok elkerülése, elhárítása érdekében
- az informatikai eszközöket, valamint a papíron kezelt információkat védjük az illetéktelen fizikai hozzáférés, valamint a környezeti hatások (pl. víz, tűz, elektromos túlfeszültség) ellen
- az informatikai rendszerünk megfigyelésével gondoskodunk a lehetséges problémák, események felderítéséről
- az üzemeltetésben résztvevő szolgáltatók kiválasztásánál alapvető szempont a megbízhatóság
7.Az adatok továbbítása, átadása
A szolgáltatásunkat igénybe vevő, illetve a weboldalunkat használó természetes személyek személyes adatait kizárólag az 5., illetve az ebben a pontban meghatározott partnereinknek, adatfeldolgozóinknak továbbítjuk, illetve adjuk át, valamint a hatóságoknak megkeresés esetén.
Az adatkezelési tevékenységünkben közreműködő partnerekkel, illetve adatfeldolgozókkal minden esetben az adatkezelés részleteire kiterjedő írásbeli megállapodást kötöttem.
Harmadik országba, illetve nemzetközi szervezet részére történő adattovábbítás nem történik.
Az adatkezelésben közreműködő szerződéses partnereink:
- Szagyu Bt. (Könyvelés)
Székhely: 2360 Gyál, Ady E u 137.
Cégjegyzékszám:13 06 040886
Adószám:21018947-1-13
- Nádas Energetikai Kft. (Energetika)
Székhely: 1066 Budapest, Jókai utca 12. 2. em. 1.
Cégjegyzékszám:01 09 184382
Adószám:24824734-2-42
- MÁS Hitel Országos Hitelközpont Kft. (Hitelügyintézés)
Székhely: 1194 Budapest, Nagyenyed utca 24.
Cégjegyzékszám:01 09 347119
Adószám:27058006-2-43
- Webrakéta Kft. (Ingatlanszoftver)
Székhely: 1111 Budapest, Lágymányosi utca 12. fszt. 2.
01 09 987579
Adószám:23980790-2-43
- KBOSS.hu Kft. – számlázz.hu (könyvelés)
Székhely: 1031 Budapest, Záhony utca 7.
Cégjegyzékszám: 01-09-303201
Adószám: 13421739-2-41
8. Az érintettek jogai
8.1Előzetes tájékoztatáshoz való jog
Az érintett jogosult arra, hogy a személyes adatokra vonatkozó adatkezelés megkezdése előtt átláthatóan, érthetően, világosan és könnyen hozzáférhetően írásban tájékoztatást kapjon az Adatkezelőtől. A tájékoztatást legkésőbb a személyes adatok megszerzésének időpontjában kell átadnia az Adatkezelőnek.
Ha az adatkezelő a személyes adatokon a gyűjtésük céljától eltérő célból további adatkezelést kíván végezni, a további adatkezelést megelőzően tájékoztatnia kell az érintettet erről az eltérő célról és minden releváns kiegészítő információról.
8.2A hozzáférés joga
Az érintett jogosult arra, hogy az Adatkezelőtől visszajelzést kapjon arra vonatkozóan, hogy személyes adatainak kezelése folyamatban van-e, és ha ilyen adatkezelés folyamatban van, jogosult arra, hogy a személyes adatokhoz és a következő információkhoz hozzáférést kapjon:
a) az adatkezelés céljai;
b) az érintett személyes adatok kategóriái;
c) azon címzettek vagy címzettek kategóriái, akikkel, illetve amelyekkel a személyes adatokat közölték vagy közölni fogják, ideértve különösen a harmadik országbeli címzetteket, illetve a nemzetközi szervezeteket;
d) adott esetben a személyes adatok tárolásának tervezett időtartama, vagy ha ez nem lehetséges, ezen időtartam meghatározásának szempontjai;
e) az érintett azon joga, hogy kérelmezheti az Adatkezelőtől a rá vonatkozó személyes adatok helyesbítését, törlését vagy kezelésének korlátozását, és tiltakozhat az ilyen személyes adatok kezelése ellen;
f) a valamely felügyeleti hatósághoz címzett panasz benyújtásának joga;
g) ha az adatokat nem az érintettől gyűjtötték, a forrásukra vonatkozó minden elérhető információ;
h) az automatizált döntéshozatal ténye, ideértve a profilalkotást is, valamint legalább ezekben az esetekben az alkalmazott logikára és arra vonatkozó érthető információk, hogy az ilyen adatkezelés milyen jelentőséggel bír, és az érintettre nézve milyen várható következményekkel jár.
Az Adatkezelő az adatkezelés tárgyát képező személyes adatok másolatát az érintett rendelkezésére bocsátja. Az érintett által kért további másolatokért az Adatkezelő az adminisztratív költségeken alapuló, ésszerű mértékű díjat számíthat fel. Ha az érintett elektronikus úton nyújtotta be a kérelmet, az információkat széles körben használt elektronikus formátumban kell rendelkezésre bocsátani, kivéve, ha az érintett másként kéri. A másolat igénylésére vonatkozó jog nem érintheti hátrányosan mások jogait és szabadságait.
8.3A helyesbítéshez való jog
Az érintett jogosult arra, hogy kérésére az Adatkezelő indokolatlan késedelem nélkül helyesbítse a rá vonatkozó pontatlan személyes adatokat. Figyelembe véve az adatkezelés célját, az érintett jogosult arra, hogy kérje a hiányos személyes adatok – egyebek mellett kiegészítő nyilatkozat útján történő – kiegészítését.
8.4A törléshez való jog („az elfeledtetéshez való jog”)
Az érintett jogosult arra, hogy kérésére az Adatkezelő indokolatlan késedelem nélkül törölje a rá vonatkozó személyes adatokat, az Adatkezelő pedig köteles arra, hogy az érintettre vonatkozó személyes adatokat indokolatlan késedelem nélkül törölje, ha az alábbi indokok valamelyike fennáll:
a) a személyes adatokra már nincs szükség abból a célból, amelyből azokat gyűjtötték vagy más módon kezelték;
b) az érintett visszavonja az adatkezelés alapját képező hozzájárulását, és az adatkezelésnek nincs más jogalapja;
c) az érintett tiltakozik az adatkezelése ellen, és nincs elsőbbséget élvező jogszerű ok az adatkezelésre;
d) a személyes adatokat jogellenesen kezelték;
e) a személyes adatokat az Adatkezelőre alkalmazandó uniós vagy tagállami jogban előírt jogi kötelezettség teljesítéséhez törölni kell;
f) a személyes adatok gyűjtésére információs társadalommal összefüggő szolgáltatások kínálásával kapcsolatosan került sor.
Ha az Adatkezelő nyilvánosságra hozta a személyes adatot, és az előbbiek értelmében azt törölni köteles, az elérhető technológia és a megvalósítás költségeinek figyelembevételével megteszi az ésszerűen elvárható lépéseket – ideértve technikai intézkedéseket – annak érdekében, hogy tájékoztassa az adatokat kezelő adatkezelőket, hogy az érintett kérelmezte tőlük a szóban forgó személyes adatokra mutató linkek vagy e személyes adatok másolatának, illetve másodpéldányának törlését.
A fentiek nem alkalmazandók, amennyiben az adatkezelés szükséges:
a) a véleménynyilvánítás szabadságához és a tájékozódáshoz való jog gyakorlása céljából;
b) a személyes adatok kezelését előíró, az Adatkezelőre alkalmazandó uniós vagy tagállami jog szerinti kötelezettség teljesítése, illetve közérdekből vagy az Adatkezelőre ruházott közhatalmi jogosítvány gyakorlása keretében végzett feladat végrehajtása céljából;
c) a népegészségügy területét érintő közérdek alapján;
d) a közérdekű archiválás céljából, tudományos és történelmi kutatási célból vagy statisztikai célból, amennyiben a törléshez való jog valószínűsíthetően lehetetlenné tenné vagy komolyan veszélyeztetné ezt az adatkezelést; vagy
e) jogi igények előterjesztéséhez, érvényesítéséhez, illetve védelméhez.
8.5Az adatkezelés korlátozásához való jog
Az érintett jogosult arra, hogy kérésére az Adatkezelő korlátozza az adatkezelést, ha az alábbiak valamelyike teljesül:
a) az érintett vitatja a személyes adatok pontosságát, ez esetben a korlátozás arra az időtartamra vonatkozik, amely lehetővé teszi, hogy az Adatkezelő ellenőrizze a személyes adatok pontosságát;
b) az adatkezelés jogellenes, és az érintett ellenzi az adatok törlését, és ehelyett kéri azok felhasználásának korlátozását;
c) az Adatkezelőnek már nincs szüksége a személyes adatokra adatkezelés céljából, de az érintett igényli azokat jogi igények előterjesztéséhez, érvényesítéséhez vagy védelméhez; vagy
d) az érintett tiltakozott az adatkezelés ellen; ez esetben a korlátozás arra az időtartamra vonatkozik, amíg megállapításra nem kerül, hogy az Adatkezelő jogos indokai elsőbbséget élveznek-e az érintett jogos indokaival szemben.
Ha az adatkezelés a fentiek alapján korlátozás alá esik, az ilyen személyes adatokat a tárolás kivételével csak az érintett hozzájárulásával, vagy jogi igények előterjesztéséhez, érvényesítéséhez vagy védelméhez, vagy más természetes vagy jogi személy jogainak védelme érdekében, vagy az Unió, illetve valamely tagállam fontos közérdekéből lehet kezelni.
Az Adatkezelő az érintettet, akinek a kérésére korlátozták az adatkezelést, az adatkezelés korlátozásának feloldásáról előzetesen tájékoztatja.
8.6A személyes adatok helyesbítéséhez vagy törléséhez, illetve az adatkezelés korlátozásához kapcsolódó értesítéshez való jog
Az érintettnek joga van ahhoz, hogy kérje az Adatkezelőtől azon címzettek megadását, akikkel személyes adatait közölték. Az Adatkezelő köteles a személyes adatok helyesbítéséről, törléséről vagy adatkezelés-korlátozásáról valamennyi olyan címzettet tájékoztatni, akivel a személyes adatot közölték, kivéve, ha ez lehetetlen, vagy aránytalanul nagy erőfeszítést igényel.
8.7Adathordozhatósághoz való jog
Az érintett jogosult arra, hogy a rá vonatkozó, általa az Adatkezelő rendelkezésére bocsátott személyes adatokat tagolt, széles körben használt, géppel olvasható formátumban megkapja, továbbá jogosult arra, hogy ezeket az adatokat egy másik adatkezelőnek továbbítsa, ha
a) az adatkezelés hozzájáruláson vagy szerződésen alapul és
b) az adatkezelés automatizált módon történik.
Az adatok hordozhatóságához való jog gyakorlása során az érintett jogosult arra, hogy – ha ez technikailag megvalósítható – kérje a személyes adatok adatkezelők közötti közvetlen továbbítását.
Az érintett adathordozhatósághoz való jogának gyakorlása nem érintheti hátrányosan mások jogait és szabadságát, amennyiben ennek ténye áll fenn, az Adatkezelő az érintett adathordozhatósághoz való jogának gyakorlását az e ténnyel alátámasztott személyes adatok kiadásának mellőzésével teljesíti, melyről indokolt tájékoztatást küld az érintettnek.
8.8A tiltakozáshoz való jog
Az érintett jogosult arra, hogy a saját helyzetével kapcsolatos okokból bármikor tiltakozzon személyes adatainak közérdekű vagy az Adatkezelőre ruházott közhatalmi jogosítvány gyakorlásának keretében végzett feladat végrehajtásához szükséges adatkezelés, vagy az Adatkezelő vagy egy harmadik fél jogos érdekeinek érvényesítéséhez szükséges kezelése ellen, ideértve az említett rendelkezéseken alapuló profilalkotást is. Ebben az esetben az Adatkezelő a személyes adatokat nem kezelheti tovább, kivéve, ha az Adatkezelő bizonyítja, hogy az adatkezelést olyan kényszerítő erejű jogos okok indokolják, amelyek elsőbbséget élveznek az érintett érdekeivel, jogaival és szabadságaival szemben, vagy amelyek jogi igények előterjesztéséhez, érvényesítéséhez vagy védelméhez kapcsolódnak.
Ha a személyes adatok kezelése közvetlen üzletszerzés érdekében történik, az érintett jogosult arra, hogy bármikor tiltakozzon a rá vonatkozó személyes adatok e célból történő kezelése ellen, ideértve a profilalkotást is, amennyiben az a közvetlen üzletszerzéshez kapcsolódik.
Ha az érintett tiltakozik a személyes adatok közvetlen üzletszerzés érdekében történő kezelése ellen, akkor a személyes adatok a továbbiakban e célból nem kezelhetők.
8.9Automatizált döntéshozatal, profilalkotás
Az érintett jogosult arra, hogy ne terjedjen ki rá az olyan, kizárólag automatizált adatkezelésen – ideértve a profilalkotást is – alapuló döntés hatálya, amely rá nézve joghatással járna vagy őt hasonlóképpen jelentős mértékben érintené. Ez nem alkalmazandó abban az esetben, ha a döntés
a) az érintett és az adatkezelő közötti szerződés megkötése vagy teljesítése érdekében szükséges,
b) meghozatalát az adatkezelőre alkalmazandó olyan uniós vagy tagállami jog teszi lehetővé, amely az érintett jogainak és szabadságainak, valamint jogos érdekeinek védelmét szolgáló megfelelő intézkedéseket is megállapít vagy
c) az érintett kifejezett hozzájárulásán alapul.
Az a) és c) pontban szereplő esetekben az Adatkezelő köteles megfelelő intézkedéseket tenni az érintett jogainak, szabadságainak és jogos érdekeinek védelme érdekében, ideértve az érintettnek legalább azt a jogát, hogy az Adatkezelő részéről emberi beavatkozást kérjen, álláspontját kifejezze, és a döntéssel szemben kifogást nyújtson be.
8.10Az érintett tájékoztatáshoz való joga az adatvédelmi incidensről
Az érintettnek joga van ahhoz, hogy tájékoztatást kapjon az Adatkezelőnél előforduló, őt érintő adatvédelmi incidensről, amennyiben az adatvédelmi incidens valószínűsíthetően magas kockázattal jár a természetes személyek jogaira és szabadságaira nézve.
8.11Az érintett joga a felügyeleti hatóságnál történő panasztételhez
Az egyéb közigazgatási vagy bírósági jogorvoslatok sérelme nélkül, minden érintett jogosult arra, hogy panaszt tegyen egy felügyeleti hatóságnál – különösen a szokásos tartózkodási helye, a munkahelye vagy a feltételezett jogsértés helye szerinti tagállamban –, ha az érintett megítélése szerint a rá vonatkozó személyes adatok kezelése megsérti a Rendeletet.
Az a felügyeleti hatóság, amelyhez a panaszt benyújtották, köteles tájékoztatni az ügyfelet a panasszal kapcsolatos eljárási fejleményekről és annak eredményéről, ideértve azt is, hogy az ügyfél jogosult bírósági jogorvoslattal élni.
Magyar tagállami felügyeleti hatóság:
Nemzeti Adatvédelmi és Információszabadság Hatóság (postacím: 1363 Budapest, Pf. 9., székhely: 1055 Budapest, Falk Miksa utca 9-11., honlap: www.naih.hu, telefon: 06-1-391-1400, e-mail cím: ugyfelszolgalat@naih.hu).
8.12A felügyeleti hatósággal szembeni hatékony bírósági jogorvoslathoz való jog
Az egyéb közigazgatási vagy nem bírósági útra tartozó jogorvoslatok sérelme nélkül, minden természetes és jogi személy jogosult a hatékony bírósági jogorvoslatra a felügyeleti hatóság rá vonatkozó, jogilag kötelező erejű döntésével szemben.
Az egyéb közigazgatási vagy nem bírósági útra tartozó jogorvoslatok sérelme nélkül, minden érintett jogosult a hatékony bírósági jogorvoslatra, ha az illetékes felügyeleti hatóság nem foglalkozik a panasszal, vagy három hónapon belül nem tájékoztatja az érintettet panasszal kapcsolatos eljárási fejleményekről vagy annak eredményéről.
A felügyeleti hatósággal szembeni eljárást a felügyeleti hatóság székhelye szerinti tagállam bírósága előtt kell megindítani.
Ezeket a jogokat az érintettek az alább megadott elérhetőségeink használatával, írásban, illetve előzetes egyeztetés alapján személyesen gyakorolhatják. Minden megkeresésre igyekszünk a lehető legrövidebb időn belül, de legfeljebb 15 munkanapon belül válaszolni.
Elérhetőségek a joggyakorlás érdekében:
- Postai levélben: 1188 Budapest, Lea utca 30/a
- E-mailben: info@fodoringatlan.hu
- Személyesen: a +36 (20) 355 6000telefonszámon egyeztetett módon.
Telefonon személyes adatokkal kapcsolatos információkat nem áll módunkban kiadni, mivel nem tudjuk azonosítani a hívó felet.
Hasonló ingatlanok
Budapest XVIII. kerület (Gloriett-telep)
XVIII. kerület – Gloriett-telep | Külön bejáratú, 70 négyzetméteres emeleti házrész saját kerttel
A XVIII. ker...
Budapest XVIII. kerület (Újpéteritelep)
Eladó új építésű, önálló földszintes családi házak – kizárólag a Fodor Ingatlaniroda kínálatában!
Budapest XVI...
Budapest XVIII. kerület (Szent Imre-kertváros)
Budapest XVIII. kerület, Szent Imre-kertváros – 3 szintes, 2 garázsos családi ház eladó
Budapest XVIII. kerüle...